Rexcon ReBLOCK Details
ReBLOCK – Die Revolution in der Bauindustrie
Rexcon ReBLOCK Details
Was sind die Details?
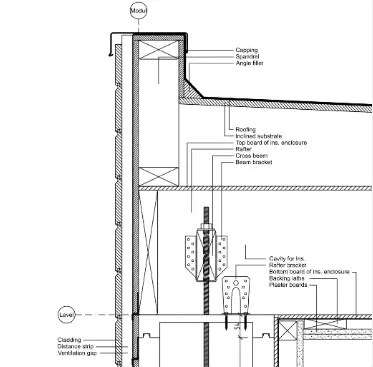
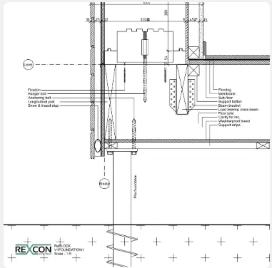
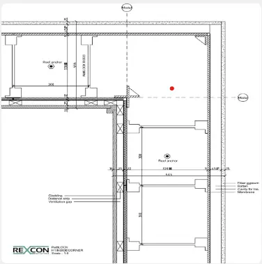
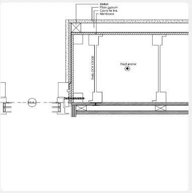
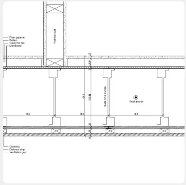
Die Konstruktionsdetails des ReBLOCK-Systems zeigen sich in effizienten modularen Designs, schneller Montage und nachhaltigen Ansätzen. Durch den Einsatz umweltfreundlicher Materialien und Wiederverwendbarkeit bietet es eine optimierte Lösung für verschiedene Bauprojekte.
Entdecke unsere technischen Zeichnungen
Lade die PDF-Dokumente mit detaillierten technischen Zeichnungen und verschiedenen Lösungsmöglichkeiten herunter, um einen umfassenden Einblick in die ReBLOCK-Konstruktion zu erhalten.


 
								





